Chalet 17 m² en bois isolé PAU S1_A1

Prix de l'option choisie:
8590.00 € 9990.00 €

Le prix sans options le plus bas pendant 30 derniers jours  9990.00 €

Livraison rapide & Gratuite
Choisissez votre option

Epaisseur du mur CHALET KIT AVEC ISOLATION

Appel et commande 04 85 44 00 20
Contactez-nous

Description

Chalet Habitable Toute l’Année 17 m² PAU S1_A1 – L’Harmonie Parfaite Entre Design et Fonctionnalité

Chalet de jardin isolé PAU S1_A1 est un chalet habitable toutes saisons de 17,2 m², conçu pour offrir un espace polyvalent et esthétique sur n'importe quel terrain. Que ce soit pour des moments de détente, un bureau inspirant, un atelier de création ou même une salle de sport privée, ce modèle s’adapte parfaitement à vos besoins.

Son architecture contemporaine et ses lignes épurées s'intègrent naturellement dans tout environnement, ajoutant une touche élégante à votre propriété. Construit avec des panneaux modulaires préfabriqués, il permet un assemblage rapide et simplifié, idéal même pour une installation en autonomie.

Besoin de plus d’espace ? Le PAU S1_A1 est extensible grâce à des modules additionnels et offre la possibilité d’un aménagement intérieur personnalisé. Grâce à la conception préfabriquée, votre chalet peut être prêt en moins de 2 semaines.

📩 Contactez-nous dès aujourd’hui pour concrétiser votre projet sur mesure !

🔎 Découvrez d'autres modèles dans la catégorie Chalets modulaires en panneaux.

Spécification/ caractéristiques principales

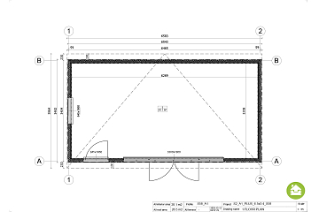
Surface habitable, m²

17 m2

Terrasse

3 m²

l’usage du bâtiment

Chalet habitable

Type de structure

Ossature

Ensemble de pièces pour fixations

Oui

Hauteur de faîtage

2,49 m

Kit d’assemblage PREMIUM Existe avec option aux normes RE2020:

PREMIUM_S58_A1

  • Étanchéité des fondations : Isolation hydrofuge pour les fondations sous les poutres de soubassement. Poutres (solives) de fondation plates imprégnées ;
  • Épaisseur des murs – 78 mm : Murs de façade non peints – panneaux verticaux en ossature bois (bois de construction standard C24). Option : murs recouverts de plaques OSB avec membrane assurant une protection durable contre l'humidité et limitant la condensation grâce à sa respirabilité, ou autres options ;
  • Escalier ou échelle pour accéder à la mezzanine ou à l’étage : À vérifier selon les plans du projet et les spécifications techniques ;
  • Plancher de l’étage (à confirmer selon les plans du projet) : Plaques OSB de 18 mm d’épaisseur ;
  • Structure de la toiture : Plaques OSB de 15 mm d’épaisseur ;
  • Kit d’éléments de finition et de montage ;
  • Kit de fenêtres et portes en bois (non peintes) : Double vitrage, portes intérieures entièrement en bois. Sens d’ouverture des portes et fenêtres à vérifier selon les plans du projet ;
  • Double joint en caoutchouc pour une protection supplémentaire des fenêtres et portes contre la pluie et le vent, ainsi qu’un kit de serrures et poignées ;
  • Kit de montage de la terrasse : Lames en bois de 18 mm d’épaisseur (non peintes), à confirmer selon les plans du projet et les spécifications techniques.

Produits similaires

Bas prix -1490.00 €
Chalet 17 m² en bois isolé CAEN S1_A2
14500.00 € 15990.00 €

17 m2

x1

3 m²

Chalet Habitable Toute l’Année 17 m² CAEN S1_A2 – Montage rapide et design contemporain Vous rech..

Voir plus
Bas prix -1660.00 €
Chalet 20 m² en bois isolé AUBAGNE S2_A1
12330.00 € 13990.00 €

20 m2

x1

🏡 Chalet Habitable Toute l’Année 20 m² Aubagne S2_A1 – L’élégance et la modularité en seulement 1 se..

Voir plus
-1260.00 €
Maison 24 m² en bois kit RE2020 avec permis de construire ANNECY V7_A1
12600.00 € 13860.00 €

24 m2

x2

x1

Maison 24 m² en bois kit RE2020 avec permis de construire ANNECY V7_A1 – Votre nouvelle maison écolo..

Voir plus

Déjà vus

Bas prix -1400.00 €
Chalet 17 m² en bois isolé PAU S1_A1
8590.00 € 9990.00 €

17 m2

3 m²

Chalet Habitable Toute l’Année 17 m² PAU S1_A1 – L’Harmonie Parfaite Entre Design et Fonctionnalité ..

Voir plus
04 85 44 00 20 Contactez-nous Téléchargement gratuit du catalogue Devis gratuite

Le site internet  CHALETPRO utilise quatre principaux types de cookies.

En poursuivant votre navigation, vous acceptez les cookies nécessaires. Vous pouvez également accepter l'utilisation d'autres cookies. Informations détaillées sur les cookies et leur procédure d'utilisation dans notre politique de confidentialité.