MAISON 54 m² MONTÉE EN RE2020 AVEC PERMIS DE CONSTRUIRE ET GARANTIE DÉCENNALE, ossature bois, résidentielle RODEZ V8_A1 – Élégance, confort et performance énergétique (modulaire et écologique).
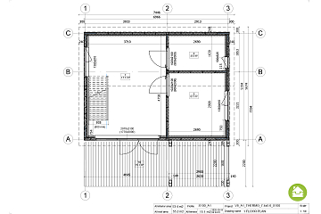
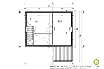
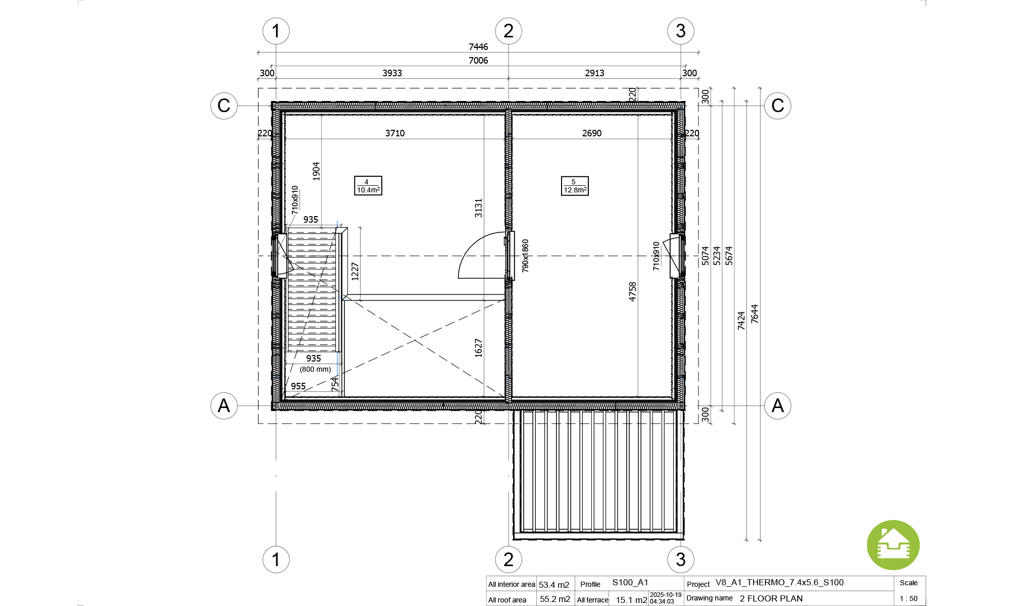
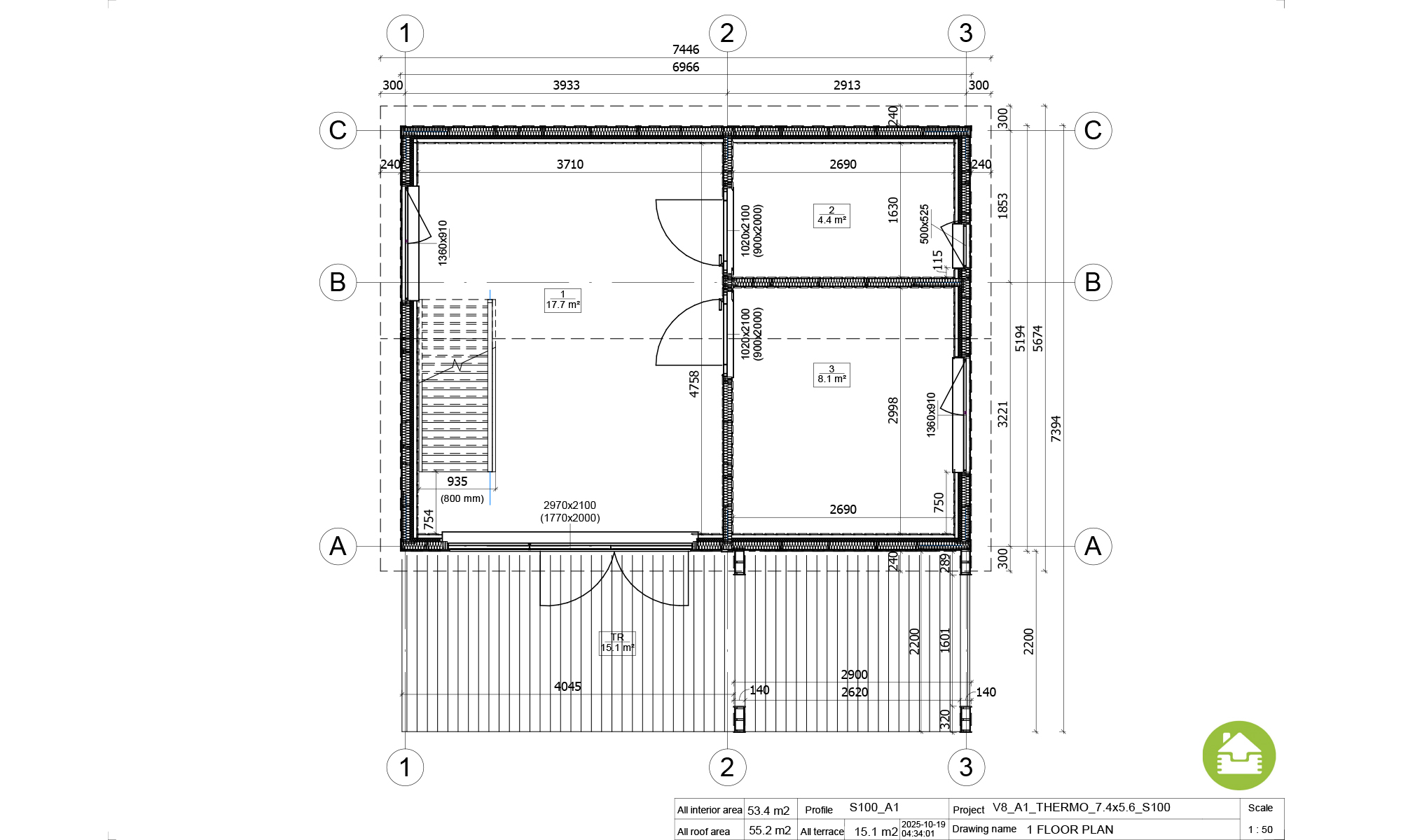
RODEZ V8_A1 est une maison modulaire polyvalente à l’architecture moderne, offrant une surface habitable de plus de 54 m². Ce modèle constitue une solution idéale pour une résidence secondaire ou une alternative économique et fonctionnelle à un appartement urbain. Grâce à sa conception de haute qualité et à la version Premium Thermo, cette maison dépasse largement les normes RE2020, garantissant un confort optimal tout au long de l’année.
Points forts :
- Montage rapide – Grâce à sa structure modulaire et à sa finition complète, l’installation est finalisée en 3 à 4 semaines.
- Excellente isolation thermique – Plusieurs options d’isolation des murs, du sol et du toit sont disponibles pour une performance thermique personnalisée.
- Personnalisation sur mesure – Choisissez entre des fenêtres en PVC ou en bois, ainsi que des configurations adaptées à vos besoins spécifiques.
- Design contemporain – Une silhouette élégante, de grandes ouvertures vitrées, un intérieur spacieux et une pergola pratique ajoutent une touche de raffinement et de confort.
- Agencement intelligent – La maison dispose de deux niveaux, avec un accès direct depuis l’étage à un balcon spacieux.
- Matériaux durables et esthétiques – Possibilité d’opter pour un revêtement extérieur en bardeaux bitumineux, une alternative élégante et résistante à l’enduit traditionnel.
RODEZ V8_A1 est bien plus qu’une maison : c’est un investissement durable, conjuguant esthétisme, praticité et confort absolu.
Commandez dès aujourd’hui et profitez de votre nouvelle maison en quelques semaines seulement !
-cr-800x533.jpg) 
                  -cr-154x103.jpg) 
                  -cr-154x103.jpg) 
                  -cr-154x103.jpg) 
                  -cr-154x103.jpg) 
                  -cr-154x103.jpg) 
                  -cr-154x103.jpg) 
                  -cr-154x103.jpg) 
                  -cr-154x103.jpg) 
                  -cr-154x103.jpg) 
                   
                   
                   
                   
                   
                   
                   
                   
                   
                   
                   
                   
                   
                   
                   
                   
                   
                   
                   
                   
                   
                   
                   
                   
                   
      -cr-360x240.jpg) 
                                    -cr-360x240.jpg) 
                                    -cr-360x240.jpg) 
                                    -cr-360x240.jpg) 
                                    -cr-360x240.jpg) 
                                    -cr-360x240.jpg) 
                                    -cr-360x240.jpg) 
                                     
                                     
                                     
                                    -cr-360x240.jpg) 
                                    -cr-360x240.jpg) 
                                    -cr-360x240.jpg) 
                                    -cr-360x240.jpg) 
                                    -cr-360x240.jpg) 
                                    -cr-360x240.jpg) 
                                    -cr-360x240.jpg) 
                                    -cr-360x240.jpg) 
                                    -cr-360x240.jpg) 
                                     
                                     
                                     
                                     
                                     
                                     
                                     
                                     
                                     
                                     
                                     
                                     
                                     
                                     
                                     
                                     
                                     
                                     
                                     
                                     
                                    