MAISON 59 m² MONTÉE EN RE2020 AVEC PERMIS DE CONSTRUIRE ET GARANTIE DÉCENNALE, ossature bois, résidentielle LIBOURNE V16_A2_Mix – compacte, design et prête à vivre toute l’année
Découvrez le modèle LIBOURNE V16_A2_Mix, une maison modulaire de 59 m² habitables, pensée pour ceux qui recherchent un habitat moderne, abordable et pratique. Que ce soit comme résidence secondaire en bois ou alternative économique à un appartement en ville, LIBOURNE s’adapte à tous les styles de vie.
Installation rapide en 3 à 6 semaines
Grâce à sa conception en modules préfabriqués, cette maison est livrée et assemblée avec ses finitions intérieures en seulement 3 à 6 semaines, selon le niveau de personnalisation. Un vrai gain de temps pour un projet maîtrisé.
Une maison à personnaliser de A à Z
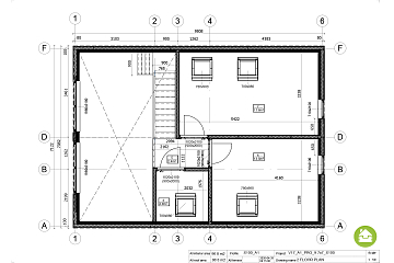
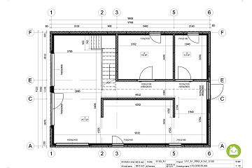
Le modèle LIBOURNE est entièrement modifiable :
- 
	changez la hauteur, la surface ou la disposition des pièces, 
- 
	choisissez vos finitions intérieures – murs, sols, plafonds –, 
- 
	sélectionnez la toiture, sa couleur, ainsi que la teinte des menuiseries PVC. 
Chaque option est clairement tarifée, ce qui vous permet de visualiser en temps réel si le projet reste dans votre budget.
Performance énergétique conforme à la norme RE2020
LIBOURNE offre déjà en version standard une excellente isolation thermique, mais en optant pour la version Premium Thermo, vous bénéficiez d’une isolation encore plus performante, conforme à la réglementation RE2020. Résultat : un confort optimal été comme hiver, et des économies d’énergie à la clé.
Un design contemporain et un intérieur bien pensé
La façade élégante en bardeaux bitumés, alternative tendance au crépi classique, s’intègre parfaitement à tous les environnements. L’intérieur séduit par son volume généreux et son agencement optimisé, offrant un cadre de vie lumineux, fonctionnel et agréable au quotidien.
🏡 Une maison compacte, mais pleine de caractère – LIBOURNE V16_A2_Mix est le choix idéal pour un habitat évolutif, stylé et accessible.
✔️ Construction rapide
✔️ Modèle personnalisable
✔️ Design moderne
✔️ Isolation conforme RE2020
Créez votre chez-vous sur mesure en toute simplicité !
 
                   
                   
                   
                   
                   
                   
                   
                   
                   
                   
                   
                   
                   
       
                                     
                                     
                                     
                                     
                                     
                                     
                                     
                                     
                                     
                                     
                                     
                                     
                                     
                                     
                                     
                                     
                                     
                                     
                                     
                                     
                                     
                                     
                                     
                                     
                                     
                                     
                                    