Maison 33 m² en bois isolé RE2020 avec permis de construire REIMS V10_A1

Prix de l'option choisie:
19470.00 € 21420.00 €

Le prix sans options le plus bas pendant 30 derniers jours  21420.00 €

Livraison rapide & Gratuite
Choisissez votre option

Epaisseur du mur MAISON KIT EN RE2020 AVEC PERMIS DE CONSTRUIRE

Epaisseur du mur MAISON MONTÉE EN RE2020 AVEC PERMIS DE CONSTRUIRE ET GARANTIE DÉCENNALE

Appel et commande 04 85 44 00 20
Contactez-nous

Description

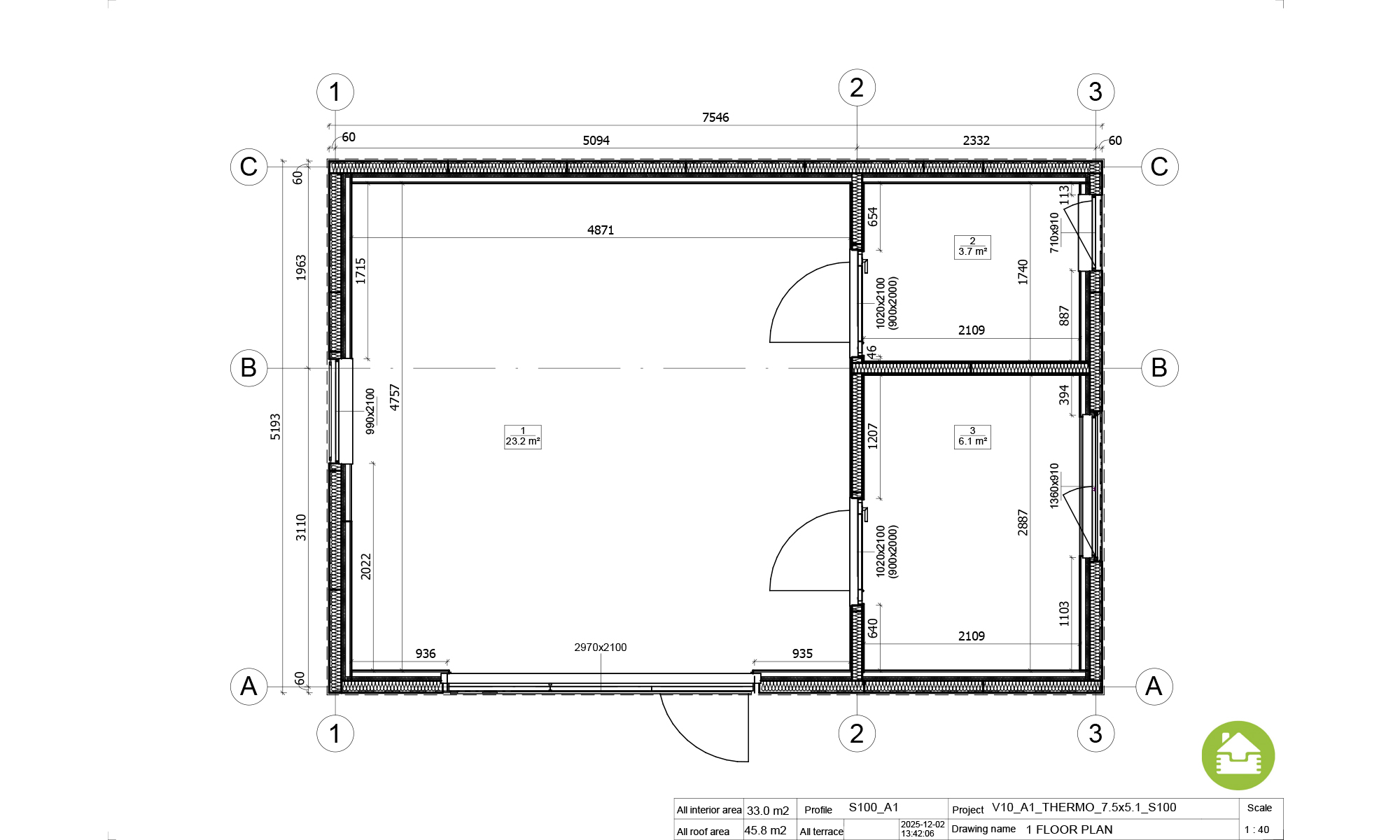
Maison bois 33 m² REIMS V10_A1 – chalet RE2020 pour résidence secondaire ou location
 

La maison bois 33 m² REIMS V10_A1 est une petite maison ossature bois RE2020, très bien isolée, idéale comme résidence secondaire confortable ou comme chalet locatif (Airbnb, gîte, location saisonnière) sur votre terrain en France.

Une chambre, un séjour lumineux et une enveloppe performante permettent d’en profiter du printemps à l’automne, voire toute l’année selon l’équipement choisi.
 

Ce que vous trouvez dans cette maison

  • 1 chambre – parfaite pour une personne ou un couple.

  • Pièce de vie avec coin cuisine et espace salon.

  • Salle d’eau avec WC.

  • Plafonds plus hauts et grandes fenêtres pour plus de lumière et de volume.

Ce n’est pas un simple abri de jardin, mais une petite maison en bois habitable, pensée pour le confort et la location.
 

Performance RE2020 et isolation THERMO
 

Cette maison ossature bois RE2020 utilise le système d’isolation THERMO pour limiter les déperditions de chaleur :

  • Toiture : env. 250 mm de laine minérale + 30 mm de XPS (U ≈ 0,13 W/m²·K).

  • Murs extérieurs : env. 100 mm de laine minérale + 40 mm de PIR (U ≈ 0,20 W/m²·K).

  • Plancher : env. 100 mm de XPS (U ≈ 0,30 W/m²·K).

  • Cloisons : laine minérale pour une meilleure isolation acoustique.

  • Menuiseries PVC avec triple vitrage (Ug basse) pour un bon confort thermique.

La structure est réalisée en bois massif C24, fabriquée en atelier dans des conditions contrôlées, selon les exigences actuelles de la construction bois en France.
 

Montage : en kit ou par notre équipe
 

Ce petit chalet bois RE2020 (maison en bois en kit) offre deux possibilités :

  • Autoconstruction si vous avez de l’expérience en construction et savez lire des plans et notices.

  • Montage par une équipe professionnelle, avec garantie décennale sur la structure pour un projet plus serein.
     

Processus de commande simple et encadré
 

Pour sécuriser votre projet, nous travaillons avec un processus en 5 étapes et des délais indicatifs :

  1. Premier contact et offre préliminaire (env. 2–3 semaines)
    Vous nous expliquez votre projet (résidence secondaire ou location) et les caractéristiques de votre terrain.
    Nous analysons vos besoins et préparons un devis clair et détaillé.
    Pendant tout le projet, vous avez un chef de projet dédié, qui suit votre maison de A à Z.

  2. Validation de la solution, plans et permis de construire (env. 2 mois si permis nécessaire)
    Une fois le modèle et les options confirmés, nous détaillons la structure, l’isolation, les menuiseries et les finitions.
    Nous préparons les plans et, si besoin, nous vous accompagnons pour le permis de construire.

  3. Fabrication en atelier (env. 1–2 mois)
    Les éléments de la maison (murs, toiture, plancher, façade) sont fabriqués en atelier, avec contrôle qualité à chaque étape.

  4. Livraison et construction sur site (env. 1–2 mois sur le terrain)

    • Version kit : livraison du kit complet avec plans de montage.

    • Version clé en main : notre équipe se charge du montage sur votre terrain, selon la configuration choisie.

  5. Remise de la maison et garanties
    La maison est remise prête à l’usage et bénéficie d’une garantie jusqu’à 10 ans sur la structure.
    Pour un projet locatif, nous pouvons vous conseiller sur l’aménagement pratique.

Spécification/ caractéristiques principales

Surface habitable, m²

33 m2

Nombre de pièces

2

WC

1

PREMIUM THERMO

RE2020

Type de structure

Ossature

Pente de toit

30°

Pour plus de modèles veuillez consulter la section Maisons ossature bois

PREMIUM THERMO_S100_A1

  • Étanchéité des fondations : Isolation hydrofuge pour les fondations sous les poutres de soubassement. Adaptée aux fondations plates ;
  • Sol : Ensemble d’isolation RE2020 – panneaux isolants XPS de 100 mm et couche de finition du sol (choisir une option) ;
  • Épaisseur des murs – 218 mm : Ensemble conforme à la norme RE2020. Murs de façade peints – panneaux verticaux en ossature bois (bois de construction standard C24) avec isolation composée de 100 mm de laine minérale + 40 mm de panneaux isolants PIR et finition intérieure. Revêtement des murs avec plaques Fermacell ou autres options ;
  • Cloisons intérieures : Remplissage en laine minérale de 100 mm et revêtement avec plaques Fermacell ou autres options ;
  • Escalier ou échelle pour accéder à la mezzanine ou à l’étage : À vérifier selon les plans du projet et les spécifications techniques ;
  • Plancher de l’étage (à confirmer selon les plans du projet) : Plancher en bois massif d'environ 18 mm d'épaisseur avec assemblage rainure-languette (non peint) ou autres options ;
  • Toiture : Ensemble d’isolation RE2020 – isolation de toiture avec 250 mm de laine minérale + 30 mm de panneaux isolants XPS. Plafonds recouverts de plaques Fermacell ou autres options ;
  • Kit d’éléments de finition et de montage :
    • Traitement des fondations, fenêtres et avancées de toit ;
  • Matériaux d’étanchéité : Bande d’étanchéité pour les portes, fenêtres et angles intérieurs ; silicone pour les angles extérieurs et l’étanchéité des murs ;
  • Kit de fenêtres et portes en PVC (blanc) : Triple vitrage, portes intérieures entièrement en bois. Sens d’ouverture des portes et fenêtres à vérifier selon les plans du projet ;
  • Kit de montage de la terrasse : Lames en bois de 18 mm d’épaisseur (non peintes), à confirmer selon les plans du projet et les spécifications techniques.

Produits similaires

-1260.00 €
Maison 24 m² en bois kit RE2020 avec permis de construire ANNECY V7_A1
12600.00 € 13860.00 €

24 m2

x2

x1

Maison 24 m² en bois kit RE2020 avec permis de construire ANNECY V7_A1 – Votre nouvelle maison écolo..

Voir plus
Maison 43 m² en bois kit RE2020 avec permis de construire VELLES V21_A1
36820.00 €

43 m2

x3

x1

Maison bois 43 m² VELLES V21_A1 – maison ossature bois RE2020 familiale ou locative La maison ..

Voir plus
-3720.00 €
Maison 34 m² en bois isolé RE2020 avec permis de construire SISTERON V15_A1
19780.00 € 23500.00 €

34 m2

x2

x1

Maison bois SISTERON 34 m² V15_A1 – chalet RE2020 pour résidence secondaire ou location La ma..

Voir plus

Déjà vus

-1950.00 €
Maison 33 m² en bois isolé RE2020 avec permis de construire REIMS V10_A1
19470.00 € 21420.00 €

33 m2

x2

x1

Maison bois 33 m² REIMS V10_A1 – chalet RE2020 pour résidence secondaire ou location La maison..

Voir plus
04 85 44 00 20 Contactez-nous Téléchargement gratuit du catalogue Devis gratuite

Le site internet  CHALETPRO utilise quatre principaux types de cookies.

En poursuivant votre navigation, vous acceptez les cookies nécessaires. Vous pouvez également accepter l'utilisation d'autres cookies. Informations détaillées sur les cookies et leur procédure d'utilisation dans notre politique de confidentialité.