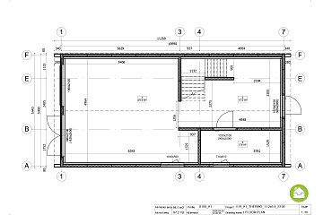
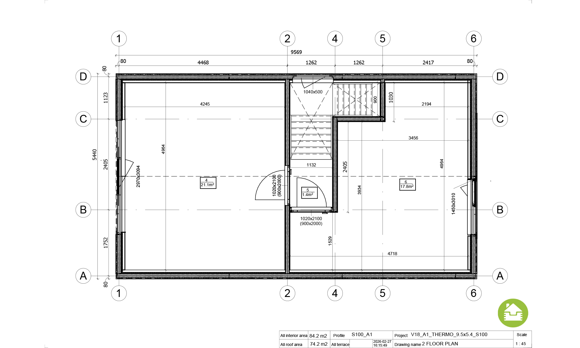
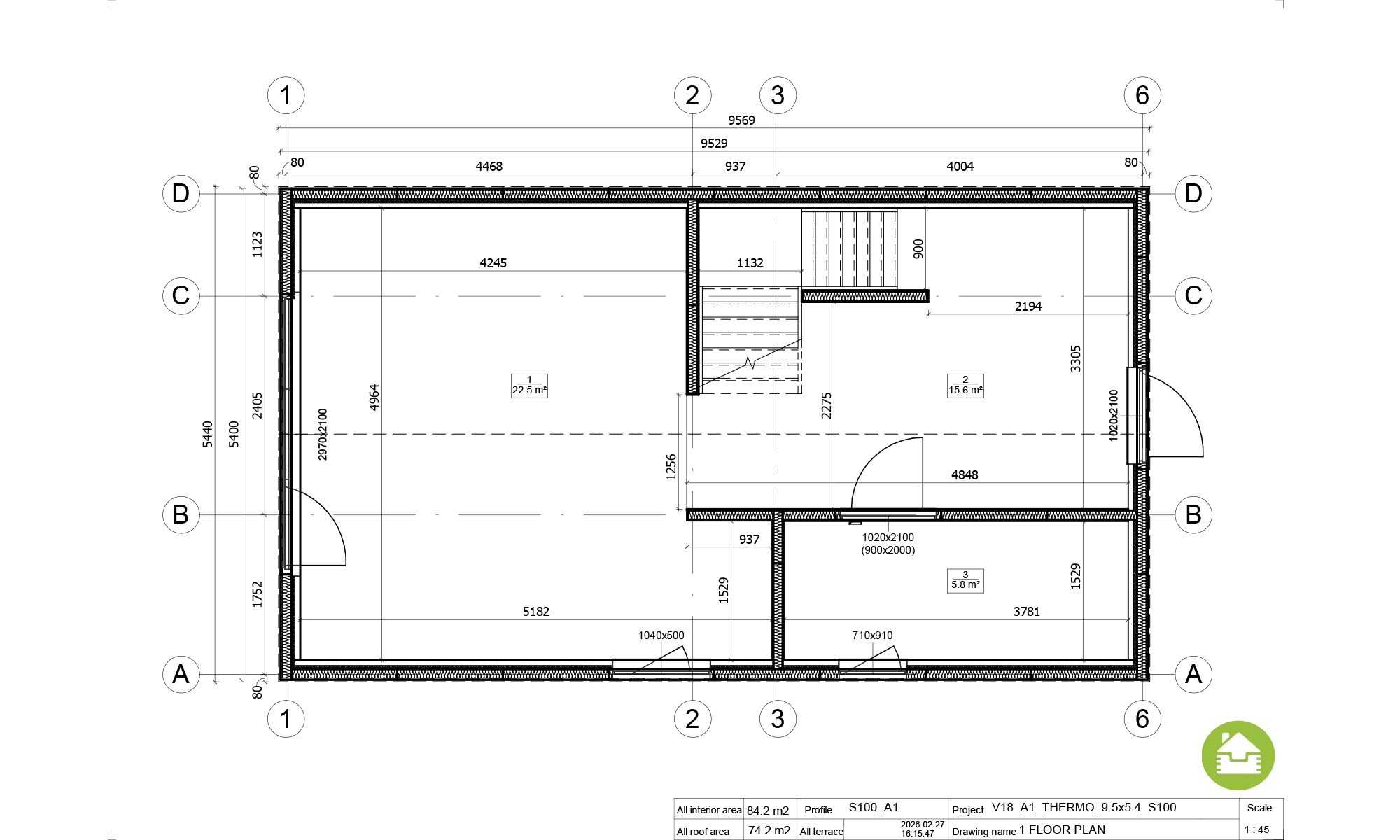
MAISON 84 m² MONTÉE EN RE2020 AVEC PERMIS DE CONSTRUIRE ET GARANTIE DÉCENNALE, ossature bois, résidentielle LORMES V18_A1 – une maison modulaire à étage avec mezzanine, d’une surface habitable de 84 m², pensée pour un confort optimal toute l’année. Parfaite comme résidence secondaire stylée ou alternative économique à un appartement.
Construite à partir d’éléments modulaires préfabriqués, elle se monte rapidement, sans besoin d’engins lourds – un vrai gain de temps et d’argent.
Pourquoi choisir le modèle LORMES V18_A1 ?
- 
	Structure isolée et étanche dès la version standard 
- 
	Version Premium THERMO conforme aux exigences thermiques RE2020 
- 
	Aménagement intérieur fonctionnel avec mezzanine 
- 
	Finitions personnalisables : façades, intérieurs, fenêtres PVC ou aluminium 
- 
	Installation complète incluse : montage, électricité, plomberie 
- 
	Montage possible même en hiver – chaque élément est protégé par un film spécial 
- 
	Notre équipe expérimentée livre une maison jusqu’à 100 m² avec finitions intérieures en 4 à 6 semaines 
Une solution rapide et intelligente pour concrétiser votre projet de maison, sans les tracas classiques.
Découvrez plus de modèles dans la catégorie Maisons modulaires – panneaux.
-cr-800x533.jpg) 
                  -cr-154x103.jpg) 
                  -cr-154x103.jpg) 
                   
                   
                  -cr-154x103.jpg) 
                   
                  -cr-154x103.jpg) 
                  -cr-154x103.jpg) 
                  -cr-154x103.jpg) 
                  -cr-154x103.jpg) 
                  -cr-154x103.jpg) 
                  -cr-154x103.jpg) 
                  -cr-154x103.jpg) 
                   
      -cr-360x240.jpg) 
                                    -cr-360x240.jpg) 
                                     
                                     
                                     
                                    -cr-360x240.jpg) 
                                    -cr-360x240.jpg) 
                                    -cr-360x240.jpg) 
                                    -cr-360x240.jpg) 
                                    -cr-360x240.jpg) 
                                    -cr-360x240.jpg) 
                                    -cr-360x240.jpg) 
                                    -cr-360x240.jpg) 
                                    -cr-360x240.jpg) 
                                    -cr-360x240.jpg) 
                                    -cr-360x240.jpg) 
                                    -cr-360x240.jpg) 
                                    -cr-360x240.jpg) 
                                    -cr-360x240.jpg) 
                                    -cr-360x240.jpg) 
                                    -cr-360x240.jpg) 
                                    -cr-360x240.jpg) 
                                    -cr-360x240.jpg) 
                                    -cr-360x240.jpg) 
                                    -cr-360x240.jpg) 
                                    -cr-360x240.jpg) 
                                    -cr-360x240.jpg) 
                                    -cr-360x240.jpg) 
                                    -cr-360x240.jpg) 
                                    -cr-360x240.jpg) 
                                    -cr-360x240.jpg) 
                                    -cr-360x240.jpg) 
                                    -cr-360x240.jpg) 
                                    -cr-360x240.jpg) 
                                     
                                    -cr-360x240.png) 
                                    -cr-360x240.jpg) 
                                    -cr-360x240.jpg) 
                                    -cr-360x240.jpg) 
                                    -cr-360x240.jpg) 
                                    -cr-360x240.jpg) 
                                    -cr-360x240.jpg) 
                                    -cr-360x240.jpg) 
                                    -cr-360x240.jpg) 
                                    -cr-360x240.jpg) 
                                    -cr-360x240.jpg) 
                                    -cr-360x240.jpg) 
                                    -cr-360x240.jpg) 
                                    -cr-360x240.jpg) 
                                    -cr-360x240.jpg) 
                                    -cr-360x240.jpg) 
                                    -cr-360x240.jpg) 
                                     
                                     
                                     
                                    -cr-360x240.jpg) 
                                    -cr-360x240.jpg) 
                                    -cr-360x240.jpg) 
                                    -cr-360x240.jpg) 
                                    -cr-360x240.jpg) 
                                    -cr-360x240.jpg) 
                                     
                                     
                                     
                                    -cr-360x240.jpg) 
                                    -cr-360x240.jpg) 
                                    -cr-360x240.jpg) 
                                    -cr-360x240.jpg) 
                                    -cr-360x240.jpg) 
                                    -cr-360x240.jpg) 
                                    -cr-360x240.jpg) 
                                    -cr-360x240.jpg)