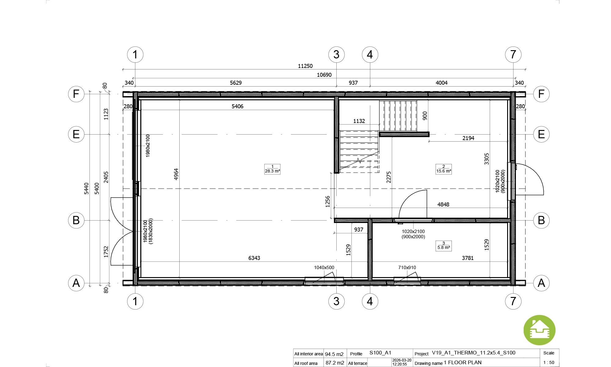
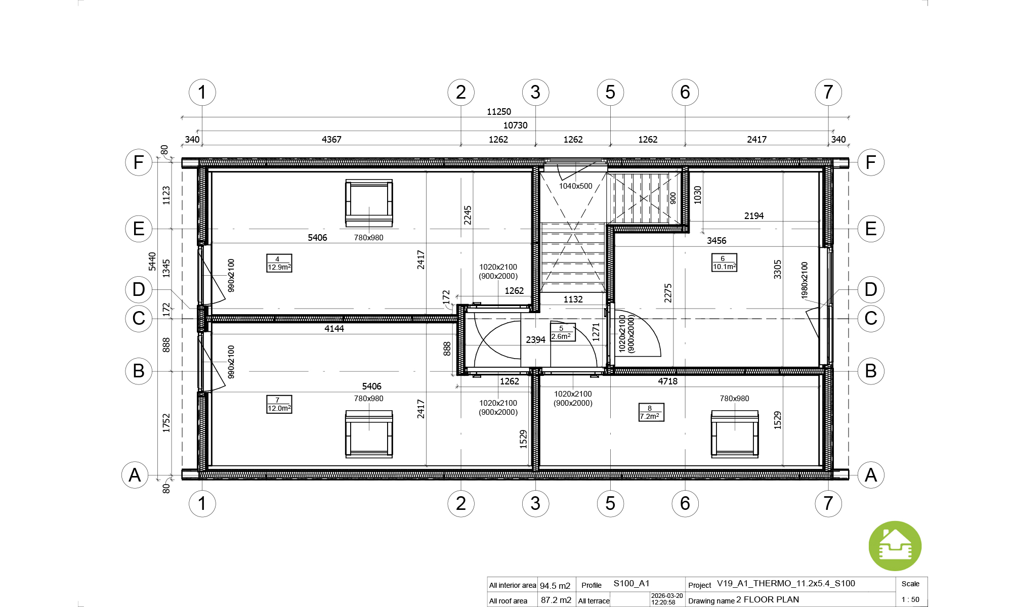
L’AVORD V19_A1 est une maison en bois moderne à étage avec mezzanine, à ossature bois, offrant 95 m² habitables conçus pour un confort toute l’année. Ce modèle unique allie design contemporain et fonctionnalité : 3 grandes chambres, une salle de bain spacieuse à l’étage, et au rez-de-chaussée, un salon lumineux, un espace pour une cuisine sur mesure, une deuxième salle de bain et un couloir pratique avec espace de rangement.
✨ Pourquoi choisir AVORD V19_A1 ?
- 
	Montage avec garantie décennale pour une tranquillité d’esprit 
- 
	Isolation thermique renforcée et excellente étanchéité dès la version de base 
- 
	Version Premium Thermo conforme aux exigences RE2020 
- 
	Aménagement bien pensé avec mezzanine et hauts plafonds 
- 
	Plusieurs styles de finitions disponibles, intérieures et extérieures 
- 
	Installation rapide sans grue – gain de temps et de budget 
- 
	Construction possible même en hiver – composants protégés 
- 
	Moins de 100 m², prête en 5 à 6 semaines 
Une maison sur mesure, moderne et pratique, idéale pour ceux qui rêvent d’une maison en bois habitable toute l’année.
🛖 Plus d’inspirations dans notre collection de maisons ossature bois.
-cr-800x533.jpg) 
                  -cr-154x103.jpg) 
                  -cr-154x103.jpg) 
                   
                   
                   
                  -cr-154x103.jpg) 
                  -cr-154x103.jpg) 
                  -cr-154x103.jpg) 
                  -cr-154x103.jpg) 
                  -cr-154x103.jpg) 
                  -cr-154x103.jpg) 
                  -cr-154x103.jpg) 
                  -cr-154x103.jpg) 
                  -cr-154x103.jpg) 
                  -cr-154x103.jpg) 
                  -cr-154x103.jpg) 
                  -cr-154x103.jpg) 
                  -cr-154x103.jpg) 
                   
       
                                     
                                     
                                     
                                     
                                     
                                     
                                     
                                     
                                     
                                     
                                     
                                     
                                     
                                     
                                     
                                    -cr-360x240.jpg) 
                                    -cr-360x240.jpg) 
                                     
                                     
                                     
                                    -cr-360x240.jpg) 
                                    -cr-360x240.jpg) 
                                    -cr-360x240.jpg) 
                                    -cr-360x240.jpg) 
                                    -cr-360x240.jpg) 
                                    -cr-360x240.jpg) 
                                    -cr-360x240.jpg) 
                                    -cr-360x240.jpg) 
                                    -cr-360x240.jpg) 
                                    -cr-360x240.jpg) 
                                    -cr-360x240.jpg) 
                                    -cr-360x240.jpg) 
                                    -cr-360x240.jpg) 
                                    -cr-360x240.jpg) 
                                    -cr-360x240.jpg) 
                                    -cr-360x240.jpg) 
                                    -cr-360x240.jpg) 
                                    -cr-360x240.jpg) 
                                    -cr-360x240.jpg) 
                                    -cr-360x240.jpg) 
                                    -cr-360x240.jpg) 
                                    -cr-360x240.jpg) 
                                    -cr-360x240.jpg) 
                                    -cr-360x240.jpg) 
                                     
                                    -cr-360x240.png) 
                                    -cr-360x240.jpg) 
                                    -cr-360x240.jpg) 
                                    -cr-360x240.jpg) 
                                    -cr-360x240.jpg) 
                                    -cr-360x240.jpg) 
                                    -cr-360x240.jpg) 
                                    -cr-360x240.jpg) 
                                    -cr-360x240.jpg) 
                                    -cr-360x240.jpg) 
                                    -cr-360x240.jpg) 
                                    -cr-360x240.jpg) 
                                    -cr-360x240.jpg) 
                                    -cr-360x240.jpg) 
                                    -cr-360x240.jpg) 
                                    -cr-360x240.jpg) 
                                    -cr-360x240.jpg) 
                                     
                                     
                                     
                                    -cr-360x240.jpg) 
                                    -cr-360x240.jpg) 
                                    -cr-360x240.jpg) 
                                    -cr-360x240.jpg) 
                                    -cr-360x240.jpg) 
                                    -cr-360x240.jpg) 
                                     
                                     
                                     
                                    -cr-360x240.jpg) 
                                    -cr-360x240.jpg) 
                                    -cr-360x240.jpg) 
                                    -cr-360x240.jpg) 
                                    -cr-360x240.jpg) 
                                    -cr-360x240.jpg) 
                                    -cr-360x240.jpg) 
                                    -cr-360x240.jpg) 
                                    -cr-360x240.jpg) 
                                    -cr-360x240.jpg) 
                                    -cr-360x240.jpg) 
                                    -cr-360x240.jpg) 
                                    -cr-360x240.jpg)