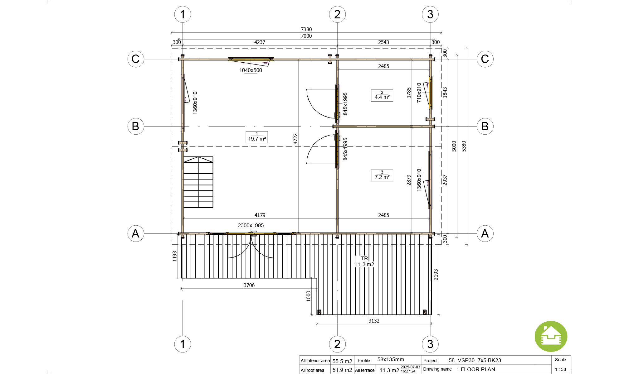
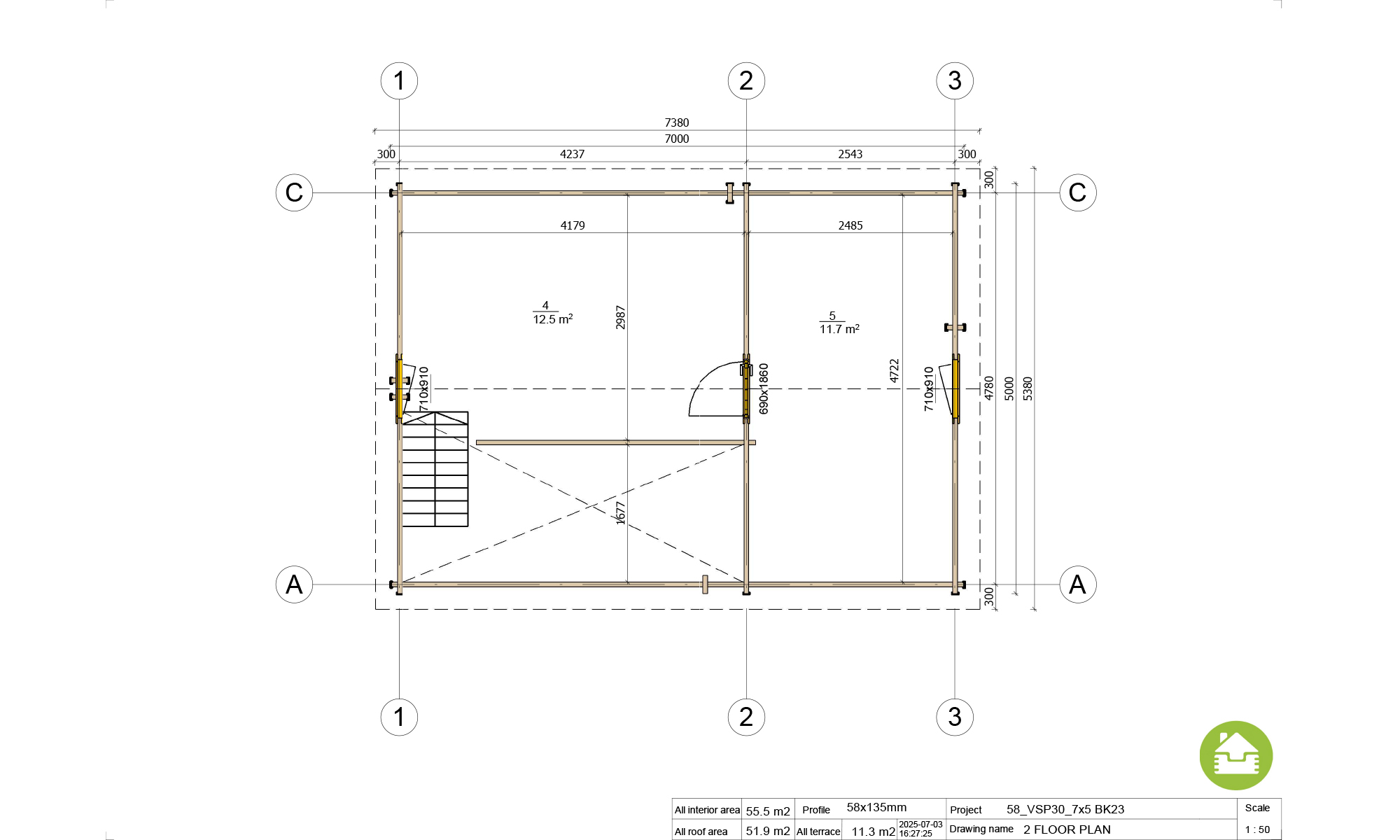
Le jolie chalet 7x5m de 31.3 m2 en RDC et 24,2 m2 en mezzanine a été conçu par nos architectes pour ceux qui sont à la recherche d’une maison de vacances pour une petite famille. La grande terrasse de 11,1 m² avec une pergola vous offrira la possibilité de passer de moments inoubliables en plein air. Ce madrier en bois écologique est livré en kit Premium, équipé des portes et fenêtres en double vitrage, du plancher bois, ainsi que des fournitures de haute qualité. Ce modèle de chalet de loisir peut être personnalisé selon les vos besoins.Contactez-nous pour un devis ou une information ! Pour plus de modèles veuillez consulter la section Chalets en bois.
- achats@chaletpro.fr
- 04 85 44 00 20
- Lu Ven de 8h30 à 17h30
