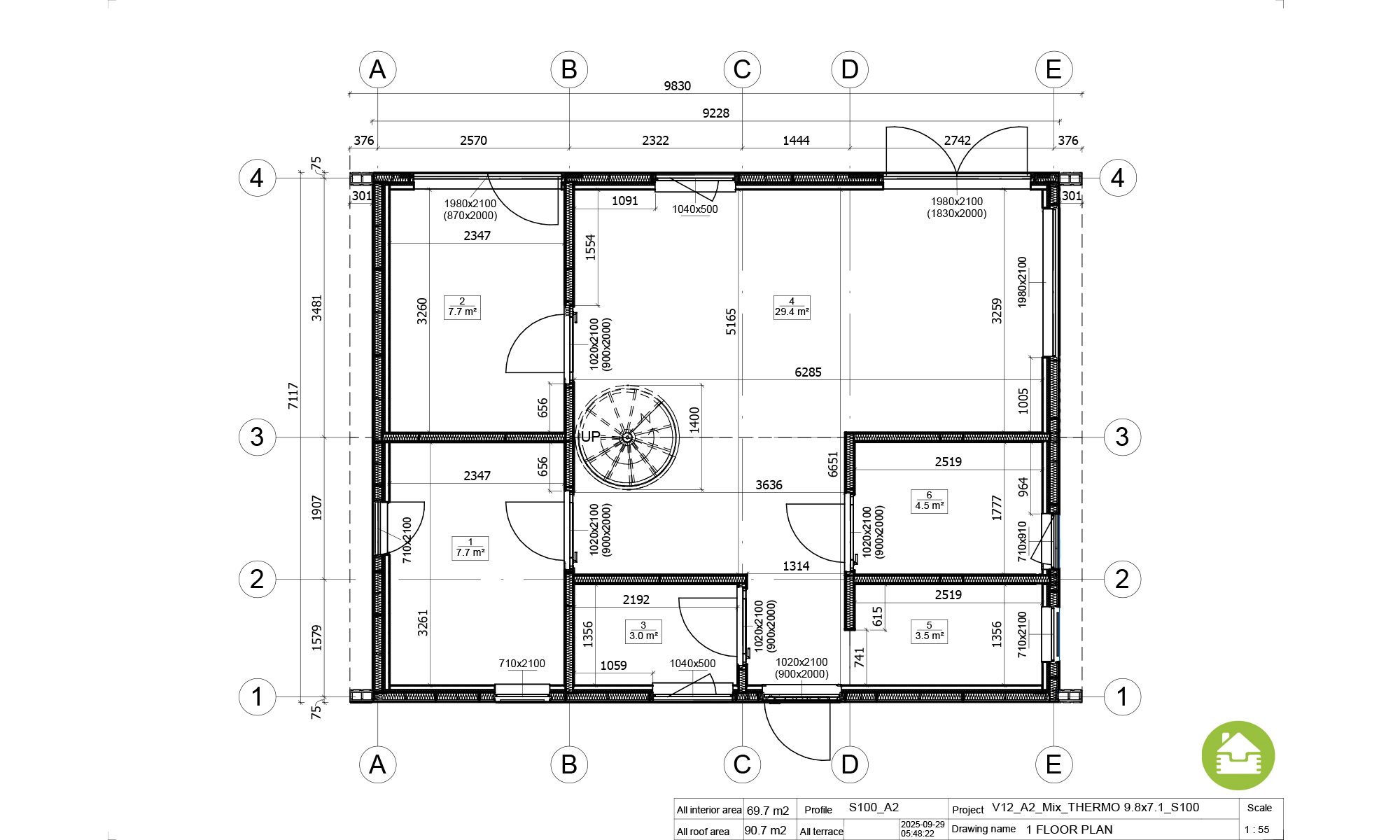
Maison 70 m² en bois kit RE2020 avec permis de construire NOLAY V12_A2

Prix de l'option choisie:
50570.00 € 60690.00 €

Le prix sans options le plus bas pendant 30 derniers jours  60690.00 €

Livraison rapide & Gratuite
Choisissez votre option

Epaisseur du mur MAISON KIT EN RE2020 AVEC PERMIS DE CONSTRUIRE

Epaisseur du mur MAISON MONTÉE EN RE2020 AVEC PERMIS DE CONSTRUIRE ET GARANTIE DÉCENNALE

Appel et commande 04 85 44 00 20
Contactez-nous

Description

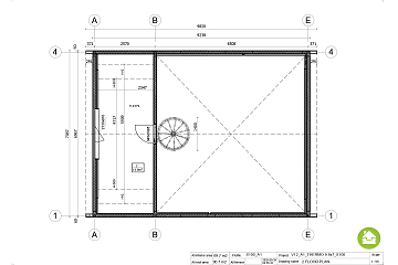
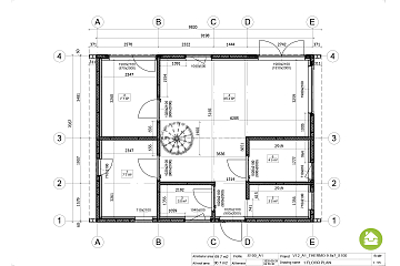
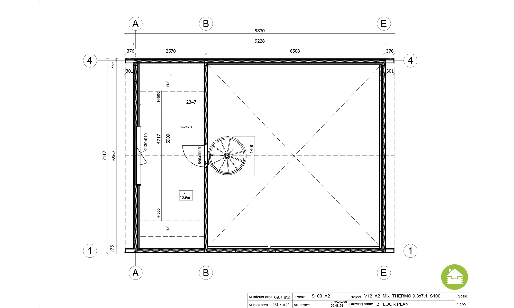
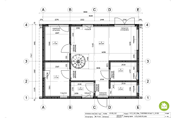
MAISON 70 m² NOLAY EN RE2020 AVEC PERMIS DE CONSTRUIRE ET GARANTIE DÉCENNALE, ossature bois, résidentielle NOLAY V12_A2 est une maison modulaire compacte à étage avec mezzanine, d’une surface habitable de 70 m². Maison modulaire en bois NOLAY V12_A2_Mix – un choix moderne et économique

Le modèle NOLAY V12_A2_Mix est une maison modulaire en bois de plus de 70 m² de surface habitable, parfaite comme résidence secondaire ou habitation principale toute l’année. Un subtil équilibre entre confort, design et praticité à un prix très attractif.

Fabriquée à partir de modules préassemblés avec finitions extérieures prêtes à poser, elle se monte rapidement sans engins lourds – idéale pour les terrains exigus ou difficilement accessibles.

Ses atouts :

  • Agencement bien pensé : un rez-de-chaussée lumineux avec un séjour spacieux, et un étage personnalisable en bureau ou chambre d’amis.

  • Haute performance thermique : en version standard déjà bien isolée, avec le système d'isolation THERMO qui dépasse les exigences de la norme RE2020, pour un confort en toutes saisons.

  • Finition moderne : bardage en bardeaux bitumés – une alternative élégante au crépi traditionnel.

  • Montage rapide : intérieur et extérieur finalisés en seulement 3 à 4 semaines (pour une surface jusqu’à 100 m²).

  • Projet modulable : finitions au choix, menuiseries en PVC ou bois, plans adaptables selon vos besoins.

Parfait pour ceux qui recherchent :

  • Une maison de vacances fonctionnelle

  • Une alternative abordable à l’appartement

  • Une construction rapide sans tracas administratifs

  • Un design moderne et un intérieur astucieux

Découvrez d'autres modèles dans la catégorie : maison ossature bois

Vivez comme vous l’imaginez – sans attente, sans compromis, avec style.

 

Spécification/ caractéristiques principales

Surface habitable, m²

70 m2

Nombre de pièces

4

WC

1

PREMIUM THERMO

RE2020

Type de structure

Ossature

Hauteur optimale des plafonds

Min 2,7 m - max 4,6 m

Le prix inclut une option toutes saisons conforme aux normes RE2020 :

PREMIUM THERMO_S100_A1

  • Étanchéité des fondations : Isolation hydrofuge pour les fondations sous les poutres de soubassement. Adaptée aux fondations plates ;
  • Sol : Ensemble d’isolation RE2020 – panneaux isolants XPS de 100 mm et couche de finition du sol (choisir une option) ;
  • Épaisseur des murs – 218 mm : Ensemble conforme à la norme RE2020. Murs de façade peints – panneaux verticaux en ossature bois (bois de construction standard C24) avec isolation composée de 100 mm de laine minérale + 40 mm de panneaux isolants PIR et finition intérieure. Revêtement des murs avec plaques Fermacell ou autres options ;
  • Cloisons intérieures : Remplissage en laine minérale de 100 mm et revêtement avec plaques Fermacell ou autres options ;
  • Escalier ou échelle pour accéder à la mezzanine ou à l’étage : À vérifier selon les plans du projet et les spécifications techniques ;
  • Plancher de l’étage (à confirmer selon les plans du projet) : Plancher en bois massif d'environ 18 mm d'épaisseur avec assemblage rainure-languette (non peint) ou autres options ;
  • Toiture : Ensemble d’isolation RE2020 – isolation de toiture avec 250 mm de laine minérale + 30 mm de panneaux isolants XPS. Plafonds recouverts de plaques Fermacell ou autres options ;
  • Kit d’éléments de finition et de montage :
  • Traitement des fondations, fenêtres et avancées de toit ;
  • Matériaux d’étanchéité : Bande d’étanchéité pour les portes, fenêtres et angles intérieurs ; silicone pour les angles extérieurs et l’étanchéité des murs ;
  • Kit de fenêtres et portes en PVC (blanc) : Triple vitrage, portes intérieures entièrement en bois. Sens d’ouverture des portes et fenêtres à vérifier selon les plans du projet ;
  • Kit de montage de la terrasse : Lames en bois de 18 mm d’épaisseur (non peintes), à confirmer selon les plans du projet et les spécifications techniques.

Produits similaires

Bas prix -6120.00 €
Maison 70 m² en bois kit RE2020 avec permis de construire BASSOU V12_A3
61200.00 € 67320.00 €

70 m2

x4

x1

MAISON 70 m² BASSOU V12_A3_Mix EN RE2020 AVEC PERMIS DE CONSTRUIRE ET GARANTIE DÉCENNALE, ossature b..

Voir plus
Bas prix -6580.00 €
Maison 70 m² en bois kit RE2020 avec permis de construire MENDE V12_A1
43830.00 € 50410.00 €

70 m2

x4

x1

MAISON 70 m² MONTÉE EN RE2020 AVEC PERMIS DE CONSTRUIRE ET GARANTIE DÉCENNALE, ossature bois, réside..

Voir plus
-8420.00 €
Maison 70 m² en bois kit RE2020 avec permis de construire SULLY V12_A4_Mix
56120.00 € 64540.00 €

70 m2

x4

x1

MAISON 70 m² SULLY EN RE2020 AVEC PERMIS DE CONSTRUIRE ET GARANTIE DÉCENNALE, ossature bois, résiden..

Voir plus
-7430.00 €
Maison 100 m² en bois kit RE2020 avec permis de construire ROUEN V25_A4_Mix
69900.00 € 77330.00 €

100 m2

x4

x2

MAISON 100 m² ROUEN V25_A4_Mix EN RE2020 AVEC PERMIS DE CONSTRUIRE ET GARANTIE DÉCENNALE, ossature b..

Voir plus

Déjà vus

Bas prix -10120.00 €
Maison 70 m² en bois kit RE2020 avec permis de construire NOLAY V12_A2
50570.00 € 60690.00 €

70 m2

x4

x1

MAISON 70 m² NOLAY EN RE2020 AVEC PERMIS DE CONSTRUIRE ET GARANTIE DÉCENNALE, ossature bois, résiden..

Voir plus
04 85 44 00 20 Contactez-nous Téléchargement gratuit du catalogue Devis gratuite

Le site internet  CHALETPRO utilise quatre principaux types de cookies.

En poursuivant votre navigation, vous acceptez les cookies nécessaires. Vous pouvez également accepter l'utilisation d'autres cookies. Informations détaillées sur les cookies et leur procédure d'utilisation dans notre politique de confidentialité.