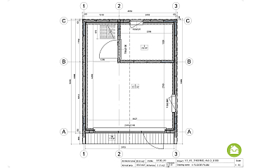
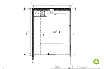
Ce chalet de 5x10m dispose de 42m² habitables avec terrasse de 15,4m², deux belles chambres avec larges baies vitrés, 1 séjour-cuisine et une Salle d’eau-WC. La grande terrasse de 15,4m² possède une partie couverte et vous accueil dans ce chalet conçu par nos architectes pour des moments inoubliables en plein air. Ce chalet en bois écologique est livré en kit Premium, équipé de portes et fenêtres en double vitrage, de plancher bois, ainsi que de fournitures de haute qualité. Ce modèle de chalet de loisir peut être personnalisé selon vos besoins. Contactez-nous pour un devis ou une information! Pour plus de modèles veuillez consulter la section Chalets en bois.
- achats@chaletpro.fr
- 04 85 44 00 20
- Lu Ven de 8h30 à 17h30
