MAISON 91 m² MONTÉE EN RE2020 AVEC PERMIS DE CONSTRUIRE ET GARANTIE DÉCENNALE, ossature bois, résidentielle BOURGES V4_A1 – L'Alliance Parfaite entre Fonctionnalité, Confort et Élégance (modulaire et écologique)
Le BOURGES V4_A1 (modulaire et écologique)est une maison en bois contemporaine de 91 m², conçue pour répondre aux attentes des esprits modernes en quête de confort, d’esthétisme et de praticité. Idéale aussi bien comme refuge saisonnier que comme alternative intelligente à un appartement, elle allie design réfléchi et matériaux haut de gamme, garantissant ainsi une qualité durable et un bien-être absolu.
Dès sa conception, la structure du BOURGES V4_A1 assure une isolation thermique efficace. En choisissant l'option Premium Pro, vous optez pour une maison conforme aux normes RE2020, garantissant une efficacité énergétique exceptionnelle tout au long de l’année. Pour un confort encore plus personnalisé, plusieurs configurations d’isolation sont disponibles pour le toit, les murs et les sols, permettant d’adapter la maison à vos besoins spécifiques et votre climat.
Le choix des fenêtres, en PVC ou en bois, vous permet de trouver l’équilibre parfait entre design, performance et authenticité. De plus, la façade peinte, déclinable en plusieurs couleurs, offre une personnalisation totale, afin que votre maison reflète pleinement votre style et s’intègre harmonieusement dans son environnement.
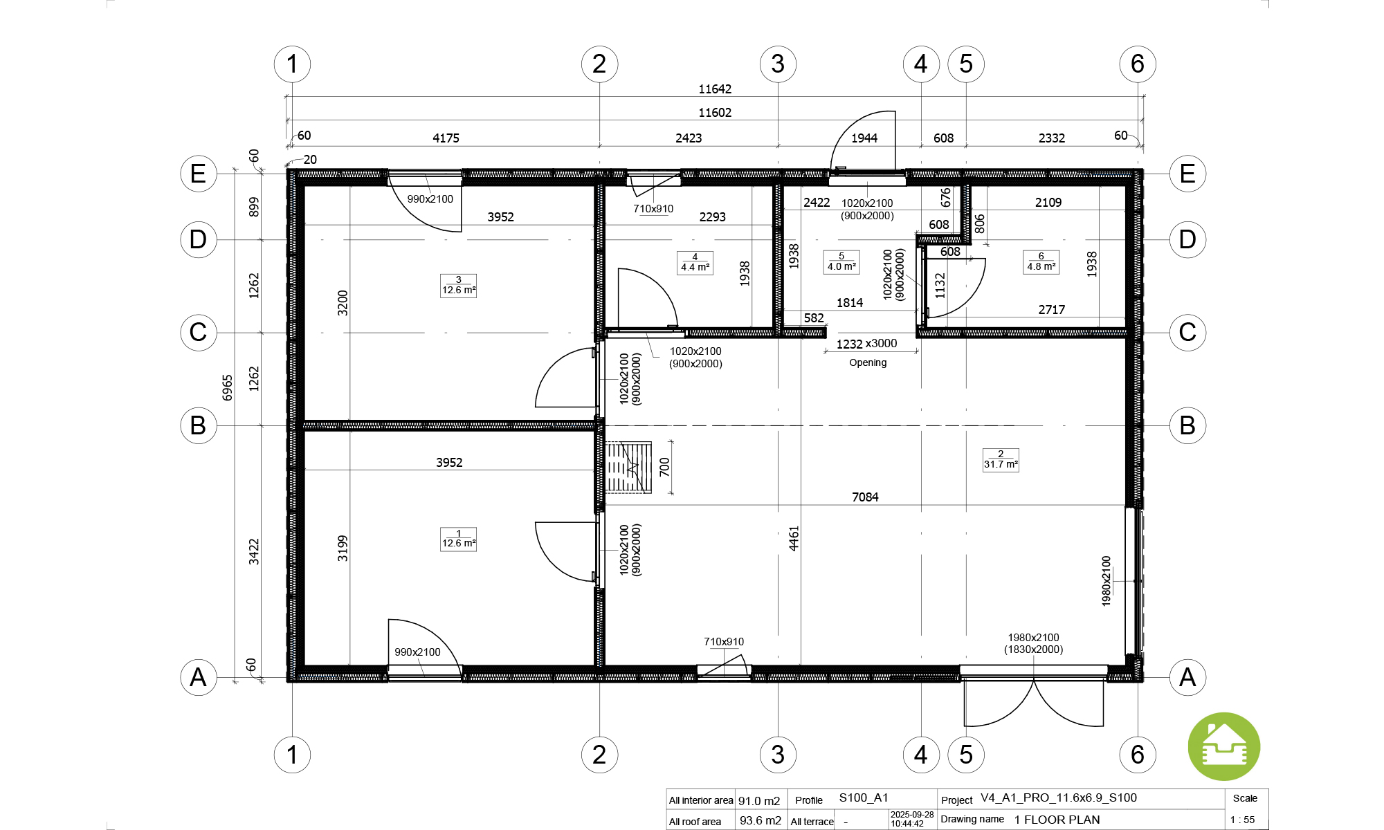
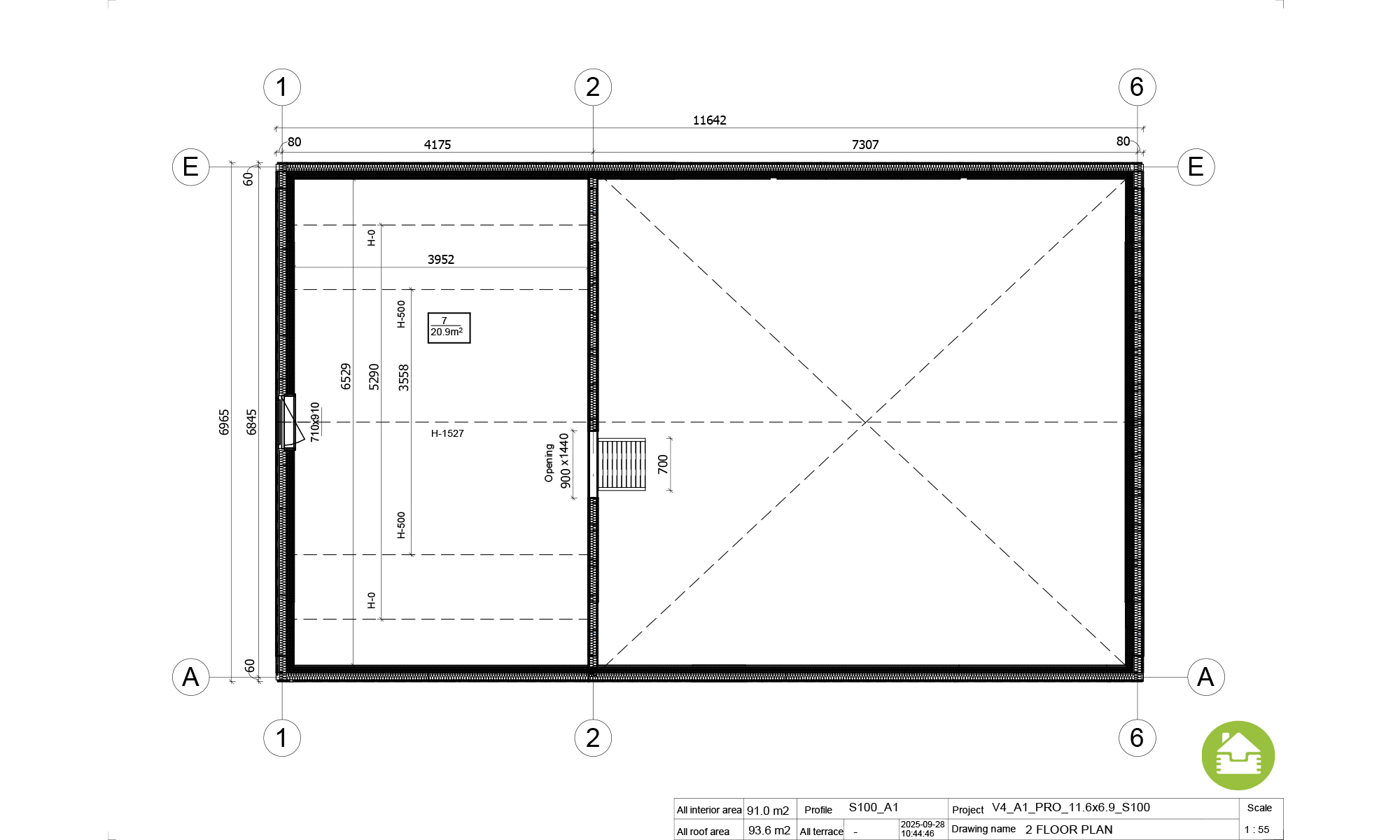
L’agencement astucieux du BOURGES V4_A1, associant un rez-de-chaussée optimisé et une mezzanine aérée, apporte une touche spacieuse et contemporaine. Chaque mètre carré a été pensé pour maximiser la fonctionnalité, créant un espace où confort et liberté se conjuguent naturellement, que vous soyez en famille ou en solo.
Grâce à un système de construction modulaire avancé, notre équipe de spécialistes assure un montage rapide et précis, vous permettant d'emménager en seulement 3 à 4 semaines. Une fois livrée, votre maison est immédiatement habitable, avec des finitions soignées et des possibilités d’aménagement flexibles selon vos préférences.
✨ BOURGES V4_A1 – Une nouvelle façon d’habiter, où design épuré, confort absolu et durabilité s’unissent pour créer un espace unique, fonctionnel et chaleureux.
📍 Découvrez plus de modèles dans la catégorie : Maisons modulaires de loisirs – panneaux préfabriqués.
